CONSTRUCTEUR DE MAISONS
en Nouvelle-Aquitaine [Gironde & Landes]

Plus de 10 000 maisons neuves construites dans le Grand-Sud

MAISON CONTEMPORAINE À TALENCE 120 M² AVEC GARAGE 4 PIÈCES ET TERRAIN DE 240 M²

Réf.: 10458-JG En en diffus votre future maison neuve 4 pièces étage à Talence (33400) proche commodités ...

Talence (33), maison 4 pièces

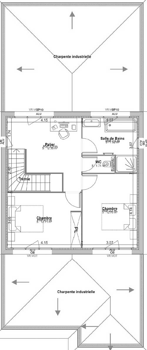
Terrain avec maison à Talence (33400) - À Talence, dans le quartier dynamique du centre-ville, cette maison contemporaine à construire de 120 m² sur un terrain de 240 m² vous offre un cadre de vie idéal pour toute la famille. Le bien comprend un garage spacieux de 20 m², un grand espace de vie ouvert avec cuisine US, ainsi qu’une suite parentale, 3 chambres et un bureau. Vous bénéficierez également d’un dressing, d’un cellier, de 2 salles de bains et de 2 toilettes. L’emplacement est parfait, proche des écoles, des transports et des commodités, offrant ainsi une grande praticité au quotidien. Talence, avec son atmosphère conviviale, est également célèbre pour abriter une partie du campus de l’Université Bordeaux, un lieu vivant et propice à l’épanouissement personnel et professionnel. Ce terrain non viabilisé vous permettra de personnaliser votre projet selon vos envies. Le coût du projet s’entend hors frais de notaire, de viabilisation et de raccordement, pour plus d'information, vous pouvez contacter M. Giacomelli Julien, chargé de projet Demeures d'Aquitaine.

Le terrain Surface 240 m²
Viabilisé Oui
Constructible
La maison PMR Non
Surface 120 m²
Toilette(s) 2
Salle de bains 2
Pièces 4
Chambre(s) 3
Surface garage 20 m²
Toiture Traditionnelle
Aménagement Cellier, Cuisine US, Dressing, Entrée, Espace de vie ouvert, Étage, Suite parentale
Construction Étage
Localisation Centre-ville, En diffus
Environnement Proche commodités, Proche des transports, Proche des écoles, Proche des universités
À proximité Pessac, Bègles, Bordeaux, Gradignan, Villenave-d'Ornon, ...
A propos du prix Prix total : 461 650 €
Demeures d'Aquitaine Agence de Langon
112 cours des Fossés 33210 Langon
Votre conseiller(ère) Julien Giacomelli

DEMANDER DES INFORMATIONS

Pour connaître et exercer vos droits, notamment de retrait de votre consentement à l'utilisation des données collectées par ce formulaire, veuillez consulter notre politique de confidentialité.

LES OFFRES DE VOTRE CONSTRUCTEUR À LANGON

Voir les annonces de votre constructeur à Talence 33400

MAISON 4 PIÈCES HORQS LOTISSEMENT SUR UN TRÈS BEAU TERRAIN DE 500M2

MAISON 4 PIÈCES HORQ...

SAINT-GERMAIN-DU-PUCH 33750
240 000 €

Terrain + maison à Saint-Germain-du-Puch (33750) - Projet de construction maison 4 pièces re2020 – terrain 500 m² en première ligne dans un environnement calme ...

81 m² 3 ch. 4 p. Terrain 500 m²

Maison contemporaine à bâtir sur terrain de 300 m² à Léognan – Proche écoles, transports et commodités

MAISON CONTEMPORAINE...

LÉOGNAN 33850
259 250 €

Maison 4 pièces + terrain à Léognan (33850) - à léognan (33850), en zone a éligible au nouveau prêt à ...

75 m² 3 ch. 4 p. Terrain 300 m²

Maison neuve 110 m² avec garage sur terrain viabilisé de 750 m² à Léognan 33850 – plain-pied familial avec 4 chambres et suite parentale

MAISON NEUVE 110 M² ...

LÉOGNAN 33850
449 500 €

Terrain avec maison 5 pièces à Léognan (33850) - Découvrez cette maison neuve de plain-pied en l, pensée pour offrir confort et praticité ...

110 m² 4 ch. 5 p. Terrain 750 m²

HORS LOTISSEMENT  MAISON 3 PIÈCES SUR UN JOLIE TERRAIN HORS LOTISSEMENT SAINT GERMAIN DU PUCH

HORS LOTISSEMENT MA...

SAINT-GERMAIN-DU-PUCH 33750
220 000 €

Terrain + maison 3 pièces à Saint-Germain-du-Puch (33750) - Saint germain du puch projet de construction maison 3 pièces re2020 – terrain 500 m² ...

71 m² 2 ch. 3 p. Terrain 500 m²

spécial investisseur
Maison traditionnelle neuve de 80 m² avec garage à Martillac, terrain viabilisé proche commodités

MAISON TRADITIONNELL...

MARTILLAC 33650
319 900 €

Terrain + maison 4 pièces Martillac (33650) - Idéal primo-accédant, dans le cadre de votre projet immobilier, nous vous proposons une maison traditionnelle ...

80 m² 3 ch. 4 p. Terrain 580 m²

Maison plain-pied 90 m² avec garage sur terrain 420 m² à Bègles proche écoles et commodités

MAISON PLAIN-PIED 90...

BÈGLES 33130
419 750 €

Maison 4 pièces + terrain à Bègles (33130) - à bègles (33130), découvrez ce projet de maison individuelle de plain-pied à construire ...

90 m² 3 ch. 4 p. Terrain 420 m²

Maison contemporaine 120 m² avec garage et terrain viabilisé de 800 m² à Bouliac

MAISON CONTEMPORAINE...

BOULIAC 33270
529 750 €

Maison avec terrain Bouliac (33270) - Découvrez une opportunité rare à bouliac (33270) avec ce projet de maison contemporaine à construire, ...

120 m² 4 ch. 5 p. Terrain 800 m²

MAISON 5 PIECES SUR UN TERRAIN DE 700M² SAINT GERMAIN DU PUCH 33750

MAISON 5 PIECES SUR ...

SAINT-GERMAIN-DU-PUCH 33750
230 000 €

Terrain + maison à Saint-Germain-du-Puch (33750) - Opportunité exceptionnelle à saint-germain-du-puch (33750) : maison individuelle sur terrain d'exception une rare ...

71 m² 2 ch. 3 p. Terrain 980 m²

CREON MAISON 3 PIÈCES SZUR UN TERRAIN DE 400M2

CREON MAISON 3 PIÈCE...

CRÉON 33670
229 000 €

Maison 3 pièces avec terrain Créon (33670) - Projet de construction maison 3 pièces re2020 – terrain 400 m² en première ...

70 m² 2 ch. 3 p. Terrain 400 m²

Terrain + Maison à Landiras pour moins de 250 000 euros

TERRAIN + MAISON À L...

LANDIRAS 33720
249 860 €

Maison avec terrain Landiras (33720) - Dans un lotissement neuf pensé pour la vie de famille, les demeures d’aquitaine, constructeur de ...

90 m² 3 ch. 4 p. Terrain 800 m²

MAISON 4 PIÈCES SUR UN TERRAIN DE 400M2 À CRÉON 33670

MAISON 4 PIÈCES SUR ...

CRÉON 33670
244 000 €

Terrain + maison 4 pièces à Créon (33670) - Projet de construction maison 4 pièces re2020 sur terrain 400 m² vous rêvez de ...

81 m² 3 ch. 4 p. Terrain 400 m²

Devenez propriétaire de votre maison pour moins de 250 000 €

DEVENEZ PROPRIÉTAIRE...

LANGON 33210
249 500 €

Maison 5 pièces avec terrain Langon (33210) - Nous vous proposons un projet de construction clé en main sur un terrain constructible ...

110 m² 4 ch. 5 p. Terrain 700 m²

Vous souhaitez construire à Talence (Gironde) en Nouvelle-Aquitaine ?

Notre équipe commerciale étudiera avec le Bureau d'études la conception de votre future maison traditionnelle ou maison contemporaine en conformité avec la réglementation environnementale 2020 (Maison RE 2020).

Faites confiance à un constructeur pour vous accompagner dans la globalité de votre projet de construction, de la recherche de votre terrain à Talence, à la conception de votre maison sur-mesure jusqu'à la remise des clés de votre maison entièrement personnalisée, et tout cela en vous offrant toutes les garanties liées au contrat CMI. Que vous souhaitiez faire construire dans le Sud Gironde, ou dans le Médoc, ou bien avoir un projet de construction dans l’Entre-Deux-Mers ou sur le Bassin d’Arcachon, ou tout simplement avoir votre maison neuve à Talence, n’hésitez pas à nous contacter pour plus d’informations !

INSCRIVEZ-VOUS À NOTRE NEWSLETTER

Topscroll